Open from May 1 until September 30, 2026

fr / en

THE MOBILE HOMES

Your stay in a mobile home on the edge of the lot

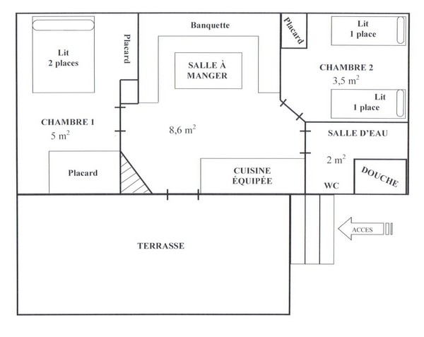
The mobile home formula is suitable for a family or a group of friends from 4 to 6 people. Our 3 mobile homes are equipped to guarantee your comfort and each have a private terrace

Mobile Home Aubrac and Lot

Fitted dining kitchen

  • Gas,
  • Fridge,
  • Microwave, Coffee maker,
  • table with chairs,
  • Dishes for 6 people,

2 closed bedrooms:

  • one with two 90 cm beds
  • the other with a 140 bed,
  • Provided: blankets and pillows, mattress protection and cushions
  • Not provided: bed linen and towels

Outdoor terrace with:

  • garden Lounge,
  • clothes line.

 

Out of season

350 Per week
  • April / May / June
  • September and October

High Season

440 Per week
  • July and August

Mobile Home Causse

Fitted dining kitchen

  • Gas,
  • Fridge,
  • Microwave, Coffee maker,
  • table with chairs,
  • Dishes for 6 people,

2 closed bedrooms:

  • one with two 90 cm beds
  • the other with a 140 bed,
  • Provided: blankets and pillows, mattress protection and cushions
  • Not provided: bed linen and towels

Outdoor terrace with:

  • garden Lounge,
  • clothes line.

 

Out of season

320 Per week
  • April / May / June
  • September and October

High Season

400 Per week
  • July and August